西春日井郡豊山町
住所:西春日井郡豊山町大字豊場字志水
土地価格:1,780万円

物件概要
敷地面積:136.27㎡(41.22坪)
所在地:西春日井郡豊山町大字豊場字志水
販売区画:1(建築条件付き)
交通1:JR東海交通事業城北線「比良」歩23分
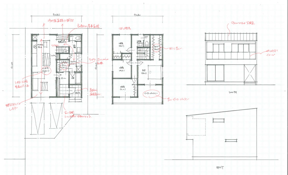
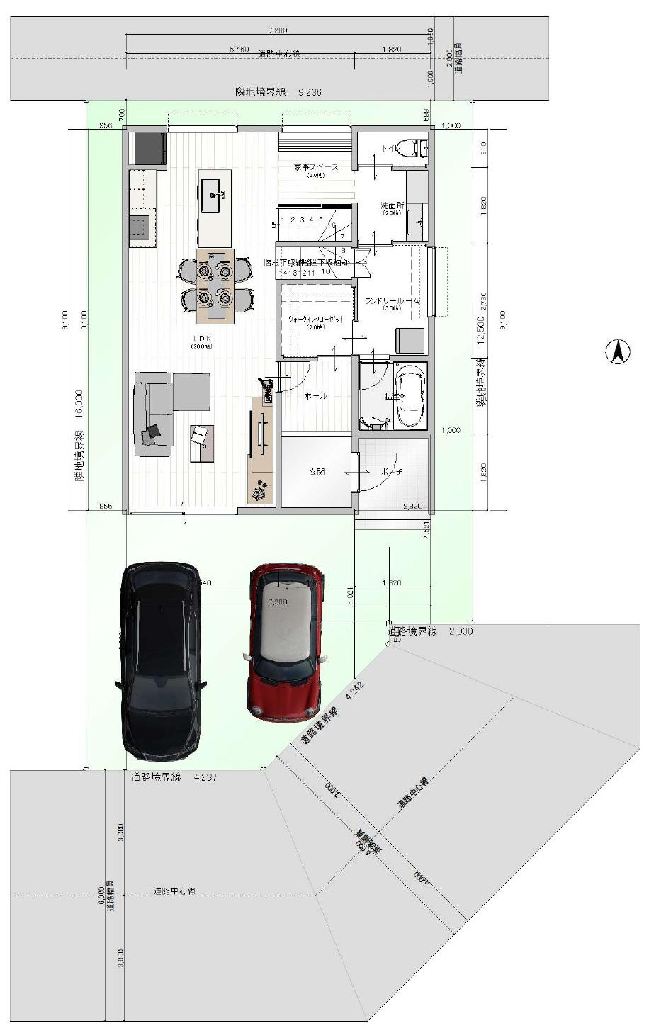
【建物プラン例_1階間取り図】
現地見学会開催中!
お電話、店舗での土地に関するご相談はもちろん、現地でご見学することも可能です!
住環境やどれくらいの大きさの建物が建てれるのかなど、実際に体感していただけます。
常時見学ご予約受付中!※火・水曜を除く
お電話または、フォームよりお問い合わせください。
金額
1,780万円
住所
西春日井郡豊山町大字豊場字志水
敷地面積
136.27m²(公簿)
建ぺい率/容積率
建ぺい率/容積率 : 60%/200%
私道負担・道路
なし
接道
南 6.0m 公道 接面10.9m
用途地域
第一種住居
施設
ー
地目
宅地
土地権利
所有権
引き渡し時期
相談
建築条件
付
取引形態
ー
防火地域
ー
その他制限事項
航空法による規制有、建築基準法22条区域、特定都市河川
情報提供日
2025年7月4日
建築条件付き土地への
お問い合わせフォーム
ご入力内容をご確認ください。
入力不備の項目がございます。
お手数ですが、もう一度入力内容をご確認ください。


















