弥富市平島東2丁目(B区画)
住所:愛知県弥富市平島東2丁目
土地価格:1,350万円

物件概要
敷地面積:152.10m²(46.01坪)
所在地:愛知県弥富市平島東2丁目
販売区画:1(建築条件付き)
交通1:近鉄名古屋線 / 近鉄弥富駅 徒歩20分
交通2:関西本線 / 弥富駅 徒歩22分
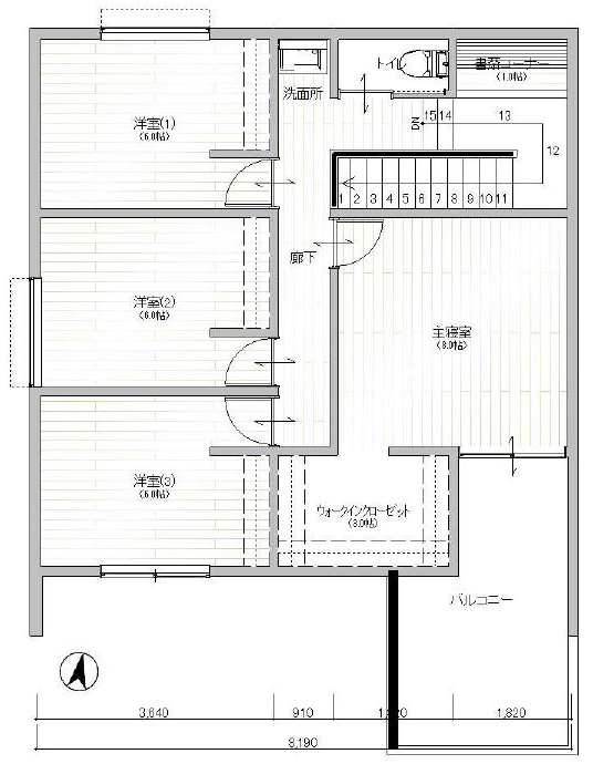
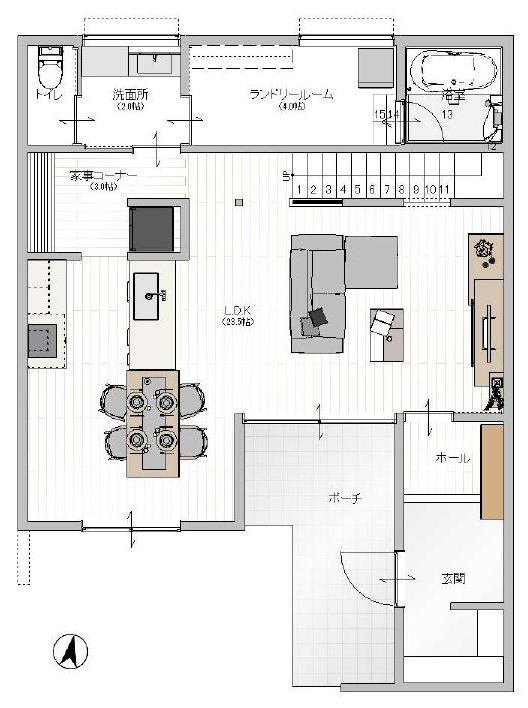
【建物プラン例_1階間取り図】

現地見学会開催中!
お電話、店舗での土地に関するご相談はもちろん、現地でご見学することも可能です!
住環境やどれくらいの大きさの建物が建てれるのかなど、実際に体感していただけます。
常時見学ご予約受付中!※火・水曜を除く
お電話または、フォームよりお問い合わせください。
金額
1,350万円
住所
愛知県弥富市平島東2丁目
敷地面積
152.10m²(公簿)
建ぺい率/容積率
60%/200%
私道負担・道路
無、南6m幅(接道幅10m)
接道
ー
用途地域
1種住居
施設
ー
地目
宅地
土地権利
所有権
引き渡し時期
相談
建築条件
付
取引形態
ー
防火地域
ー
その他制限事項
建築基準法22条区域
情報提供日
2025年7月6日
建築条件付き土地への
お問い合わせフォーム
ご入力内容をご確認ください。
入力不備の項目がございます。
お手数ですが、もう一度入力内容をご確認ください。


















